首頁 > 房屋出售 > 誠昱/海佃商圈大地坪透天
第一房屋仲介 - 誠昱/海佃商圈大地坪透天

誠昱/海佃商圈大地坪透天

透天/別墅      1180萬

系統編號

物件區域
709台南市安南區

物件地址
海環街

地坪
35.96 坪

總建坪
36 坪

室內坪數
36 坪

主建物坪
36 坪

總樓層
2 樓

位於樓層
1~2 樓

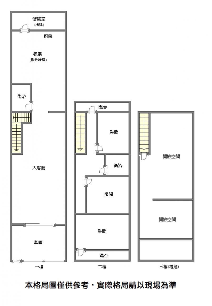
格局
3房2廳2衛2陽台

房屋座向
座東北朝西南

採光面數
2 面採光

建物結構
加強磚造

建築完工
1979年 屋齡約47年

臨路寬度
約6 米路

鄰近市場
傳統市場

鄰近學區
海東國小|安南國中

公園綠地
社區公園

特色說明
1.35大地坪,土地零持分,臨6米路通巷
2.位於海佃路熱鬧商圈,生活交通都便利
3.近商60重劃區,未來增值可期
4.約十年前水電管線更新,屋況使用更安心

※以上資訊如有記載錯誤,一律依謄本登記簿為準

 - 誠昱/海佃商圈大地坪透天
 - 誠昱/海佃商圈大地坪透天
 - 誠昱/海佃商圈大地坪透天
 - 誠昱/海佃商圈大地坪透天
 - 誠昱/海佃商圈大地坪透天
 - 誠昱/海佃商圈大地坪透天
 - 誠昱/海佃商圈大地坪透天
 - 誠昱/海佃商圈大地坪透天
 - 誠昱/海佃商圈大地坪透天
 - 誠昱/海佃商圈大地坪透天
 - 誠昱/海佃商圈大地坪透天
 - 誠昱/海佃商圈大地坪透天
 - 誠昱/海佃商圈大地坪透天
 - 誠昱/海佃商圈大地坪透天
 - 誠昱/海佃商圈大地坪透天
推薦物件...

誠昱/南應大/鹽行商圈全.

誠昱/南應大/鹽行商圈全.
2688 萬

誠昱/限時賠售880萬藏.

誠昱/限時賠售880萬藏.
880 萬

誠昱/太乙甲種工業廠房

誠昱/太乙甲種工業廠房
2880 萬

誠昱/安南摩登世紀雙套房.

誠昱/安南摩登世紀雙套房.
980 萬

誠昱/碳佐麻里新興園區方.

誠昱/碳佐麻里新興園區方.
4380 萬

誠昱/文化國小1+2優質.

誠昱/文化國小1+2優質.
1380 萬

誠昱/近科工都內農地

誠昱/近科工都內農地
2588 萬

誠昱/市中心整新全配魔術.

誠昱/市中心整新全配魔術.
598 萬


更多..
地圖
分享到臉書